RD Pustiměř – Konečná 3112026-03-24T13:39:59+00:00

RD Pustiměř – Konečná 311

Základní informace

Základní parametry nemovitosti

celková plocha pozemku: 594 m²
zastavěná plocha domu: 57 m²
užitná plocha domu: 86 m²
samostatně stojící, dvoupodlažní rodinný dům

Technické provedení zdivo:
pórobetonové tvárnice 300 mm
střecha: rovná betonová, zateplená spádovým polystyrenem
střešní krytina: PVC
stropy a schodiště: železobetonové
vytápění: teplovodní podlahové topení
ohřev TUV: úsporný bojler
energetická náročnost: třída C – nízkoenergetický dům

Dům je vybaven moderní hybridní fotovoltaickou elektrárnou o výkonu až 4,95 kWp s bateriovým úložištěm 10,65 kWh, která zajišťuje roční výrobu elektřiny až 6 MWh. Součástí systému je také wallbox pro nabíjení elektromobilu. Celková hodnota této technologie činí 350.000 Kč, což výrazně snižuje provozní náklady domu.

V ceně rodinného domu je zahrnuta také instalace oplocení z poplastovaného pletiva včetně zelené geotextilie, která zajišťuje maximální soukromí na zahradě.

Dům je již napojen na optický internet.

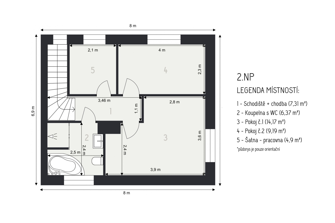
Dispozice domu – 3+kk

1. NP obývací pokoj s jídelnou: 26,01 m² kuchyň: 5,28 m² předsíň: 5,88 m² technická místnost: 5,11 m² WC: 1,28 m²

2. NP ložnice: 14,17 m² pokoj: 9,19 m² šatna / pracovna: 4,90 m² koupelna s WC: 6,37 m² (vana i sprchový kout) chodba se schodištěm: 7,31 m²

Z obývacího pokoje je přímý vstup na terasu a zahradu.

S financováním koupě Vám rád pomůže náš finanční specialista. Nabídka je nezávazná a zcela zdarma.

Celková cena: 8 790 000 Kč za nemovitost, včetně DPH, včetně provize a právního servisu
Stavba: Zděná
Stav objektu: Novostavba
Poloha domu: Řadový
Umístění objektu: Klidná část obce
Typ domu: Dvoupodlažní
Počet podlaží: 2
Zastavěná plocha: 57 m2
Užitná plocha: 86m2
Podlahová plocha: 86 m2
Plocha pozemku: 594 m2
Rok kolaudace: 2023
Voda: Místní zdroj
Topení: Podlahové, Krbová kamna
Odpad: Veřejná kanalizace
Doprava: Dálnice, Silnice, Autobus
Komunikace: Asfaltová
Energetická náročnost budovy: Třída C – Velmi úsporná č. 78/2013 Sb. podle vyhlášky
Mám zájem o dům

Lokalita – dojezdnost

Pustiměř – Vyškov 7 km  (10 minut)
Pustiměř – Brno 46 km  (33 minut)
Pustiměř – Prostějov 22 km (18 minut)
Mám zájem o dům
Jak se žije v Pustiměři

Dispozice domu

S potěšením Vám představujeme k prodeji novostavbu nízkoenergeticky, samostatně stojícího rodinného domu, dispozice 4+kk se zahradou a dvěma parkovacími stání, uvnitř nově vznikající zástavby v obci Pustiměř, okr. Vyškov.

Zakončete své hledání nejlepšího bydlení na ulici Konečná v obci Pustiměř. Obec se nachází 5 km severně od města Vyškova, 21 km jižně od města Prostějova a je situována v krásném prostředí lesů a vod, na okrajových svazích Drahanské vrchoviny, v okolí řada turistických cílů. Obec má slušnou občanskou vybavenost (pošta, škola, praktický lékař, zubní lékař, obchod s potravinami, sportoviště, dům s pečovatelskou službou, atd.). Připojení k internetu nabízí hned několik poskytovatelů. Možnost zaměstnání skýtají velké spol. Bioveta, a.s., Fischer automotive systems s.r.o. Kompletní služby v nedalekém Vyškově. Výborná dostupnost po rychlostní komunikaci D46 – dojezd do Prostějova 15 min. IDS bus Pustiměř. Do centra Brna za zhruba 30 minut autem nebo do 60 minut hromadnou dopravou z ÚAN Zvonařka, nebo hlavního vlakového nádraží v Brně.

Celková plocha parcely činí 318 m2, zastavěná plocha domu 63 m2, užitná plocha domu 97,3 m2. Jedná se o samostatně stojící, dvoupodlažní rodinný dům. Zdivo z pórobetonových tvárnic 300 mm. Střecha rovná betonová, zateplení střechy spádovým polystyrenem, krytina PVC. Stropy a schodiště betonové. Vytápění domu zajišťuje teplovodní podlahové topení a ohřev teplé vody úsporný bojler. Dům je nízkoenergetický, třídy energetické náročnosti C, postavený z kvalitních trvanlivých materiálů. Dům mám provedenou stavební přípravu pro instalaci fotovoltaické elektrárny (FVE) o výkonu až 6,6 kWp s celkovou roční výrobou 7,3 MWh.

Dispozice domu 4+kk.

1. NP – obývací pokoj + jídelna 29,52 m2, kuchyň 7,8 m2, zádveří 5,88 m2, technická místnost 5,11 m2, WC 1,28 m2,

2.NP – ložnice 14,7 m2, pokoj 8,97 m2, pokoj 9,08 m2, koupelna + WC 6,37 m2 (vana i sprch. kout), chodba 8,6 m2,

Na zahradu a terasu je samostatný přístup z obývacího pokoje.

S financováním Vám může pomoci náš fin. specialista. Nabídka je nezávazná a samozřejmě zcela zdarma.